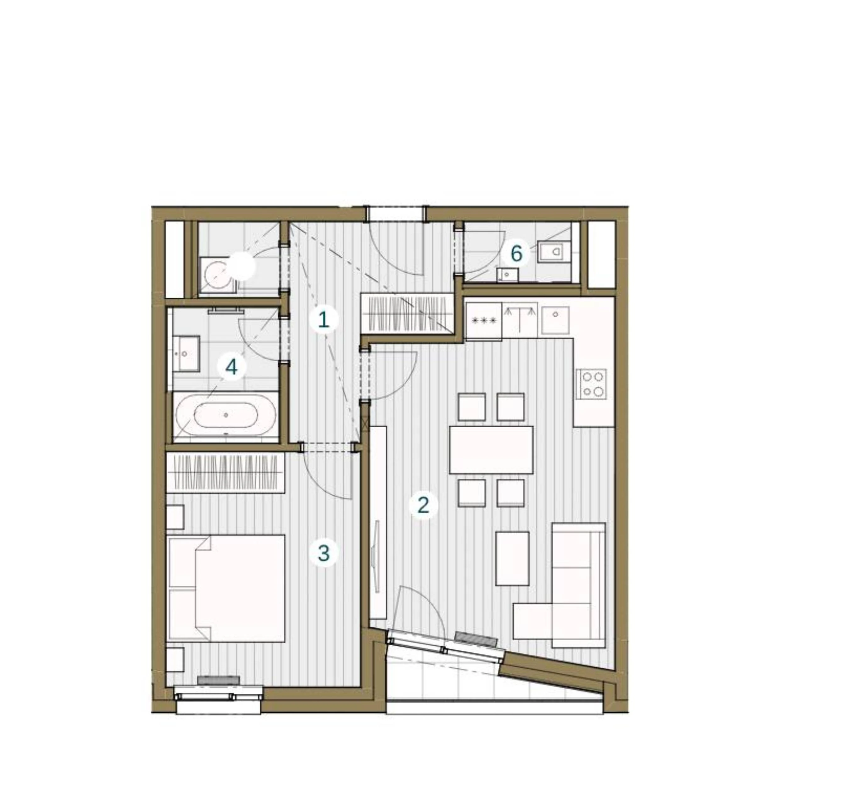
D.02.4
Sold
2+kk
- Price incl. VAT
- –
- Project
- Žižkovské zahrady
- Type
- Flat
- Completion
- 2Q 2027
- Floor
- 2
- Total area
- 56,6 sq.m.
- Living area
- 51,3 sq.m.
- Terrace
- 2,0 sq.m.
- Cellar
- -
- Parking spot
- No
