D2.01.02
                        
                        Sold
                    
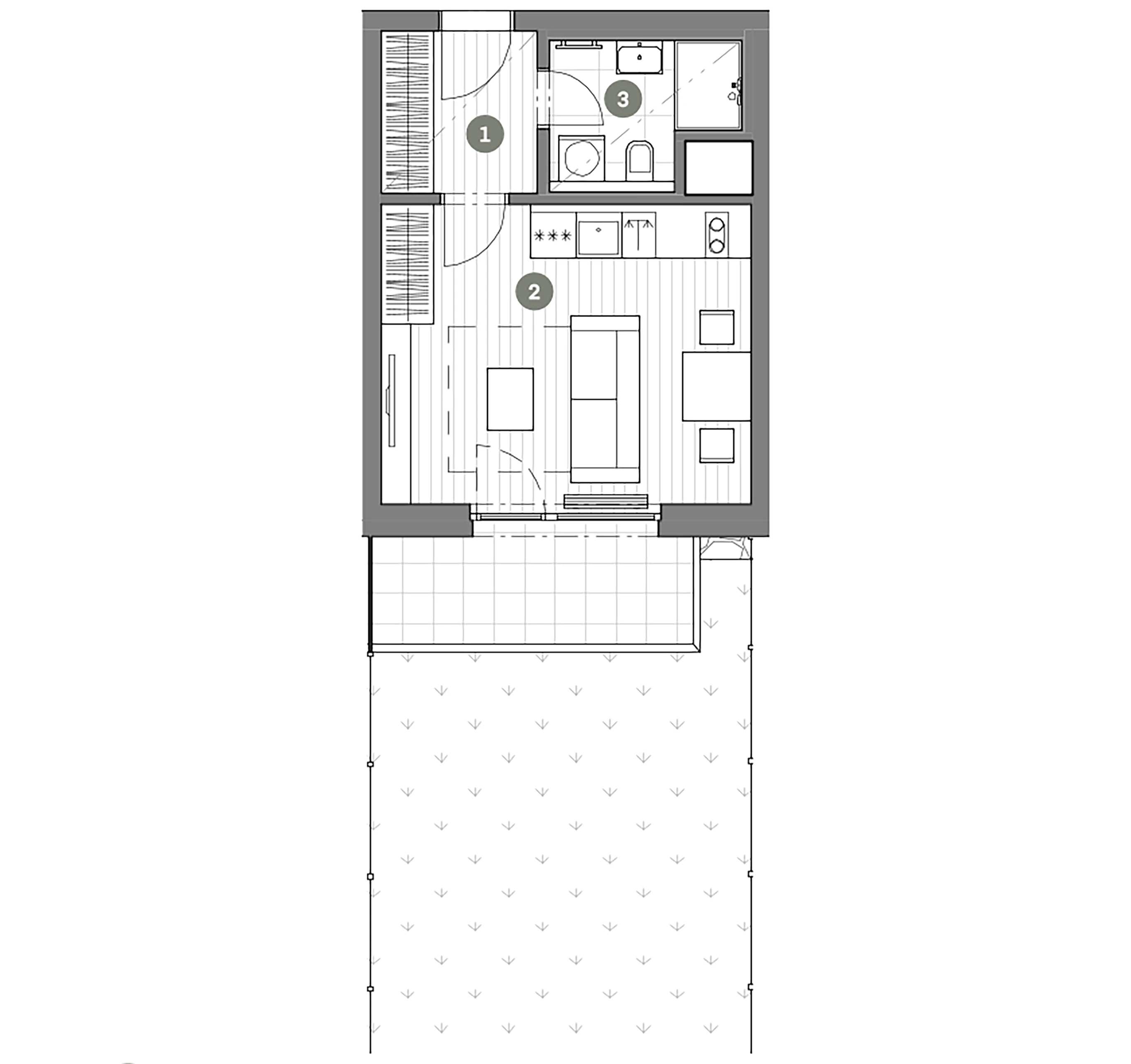
                1+kk
- Price incl. VAT
- –
- Project
- Kolbenova park
- Type
- Flat
- Completion
- 2Q 2027
- Floor
- 1
- Total area
- 30,4 sq.m.
- Living area
- 27,5 sq.m.
- Terrace
- 6,5 sq.m.
- Garden
- 38,3 sq.m.
- Cellar
- -
- Parking spot
- No
