D.01.7

Available

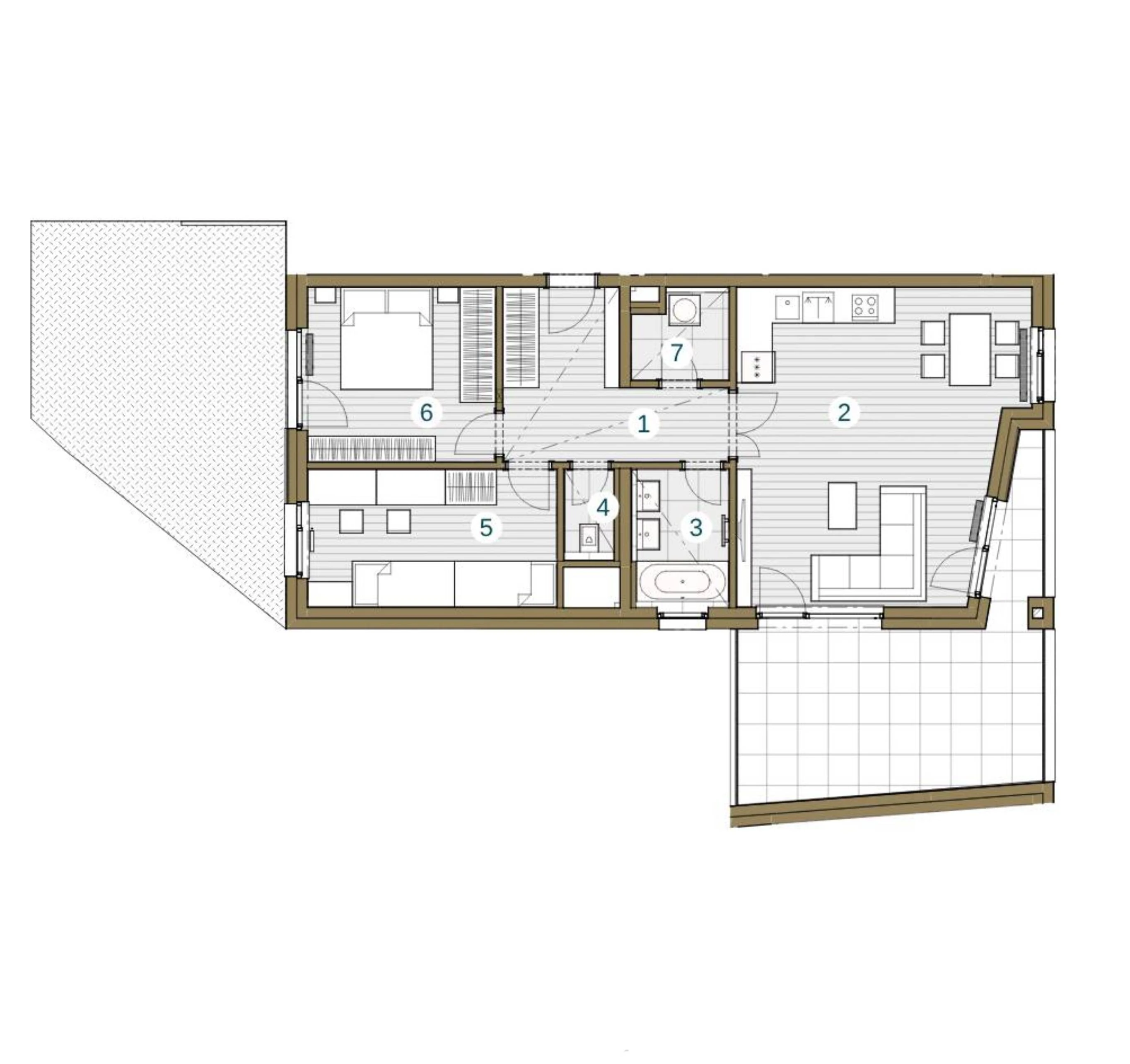
3+kk

Price incl. VAT
CZK 16,890,023
Project
Žižkovské zahrady
Type
Flat
Completion
2Q 2027
Floor
1
Total area
85,6 sq.m.
Living area
78,6 sq.m.
Terrace
22,6 sq.m.
Garden
28,7 sq.m.
Cellar
2,6 sq.m.
Parking spot
Yes

Subscribe to our newsletter

Register in the database and gain access to exclusive offers for new projects.

We process your personal data in accordance with GDPR.

More information about personal data processing.