C3.05.2

Sold

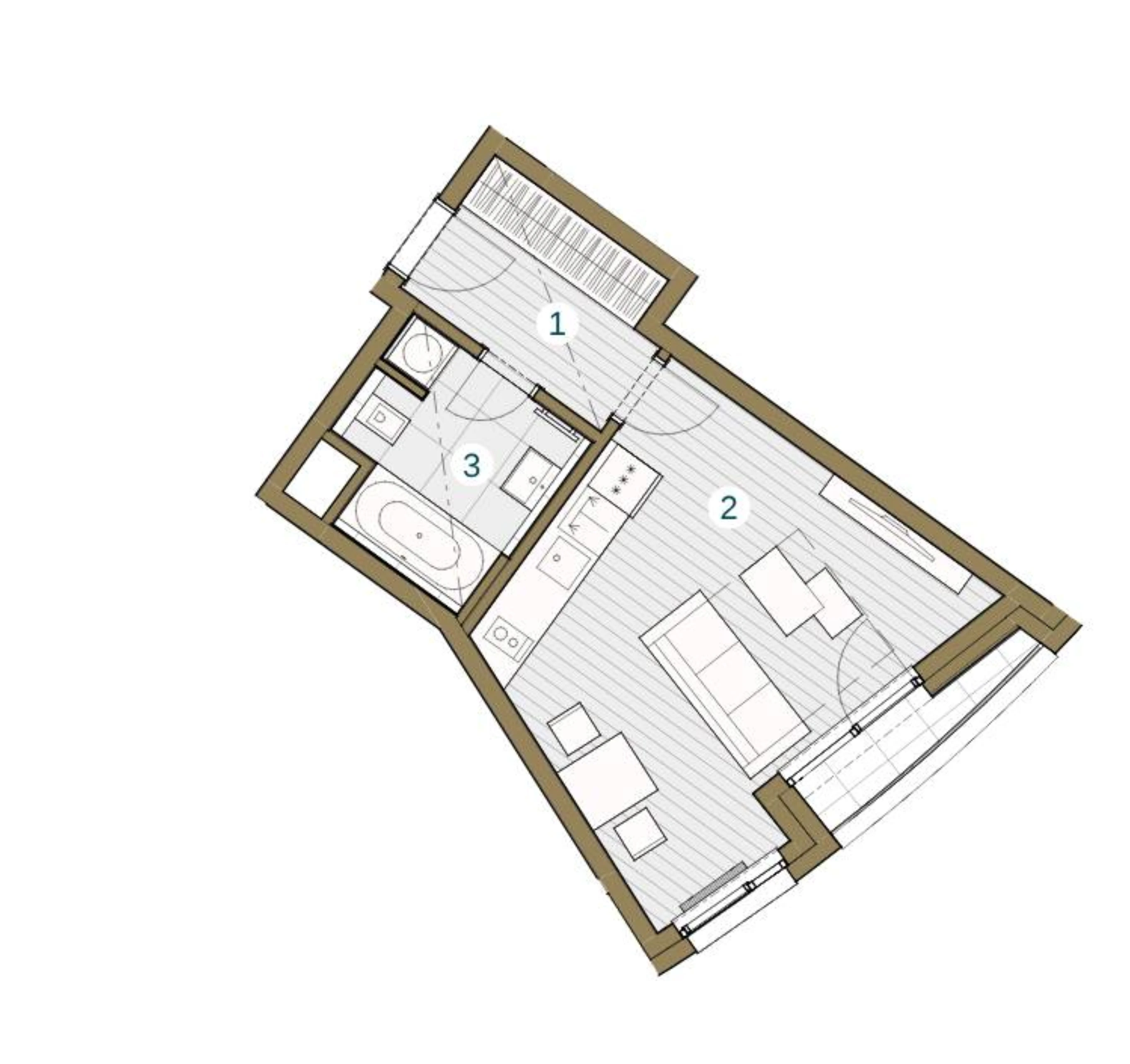
1+kk

Price incl. VAT
Project
Žižkovské zahrady
Type
Flat
Completion
2Q 2027
Floor
5
Total area
33,8 sq.m.
Living area
31,1 sq.m.
Terrace
1,8 sq.m.
Cellar
-
Parking spot
No

Subscribe to our newsletter

Register in the database and gain access to exclusive offers for new projects.

We process your personal data in accordance with GDPR.

More information about personal data processing.