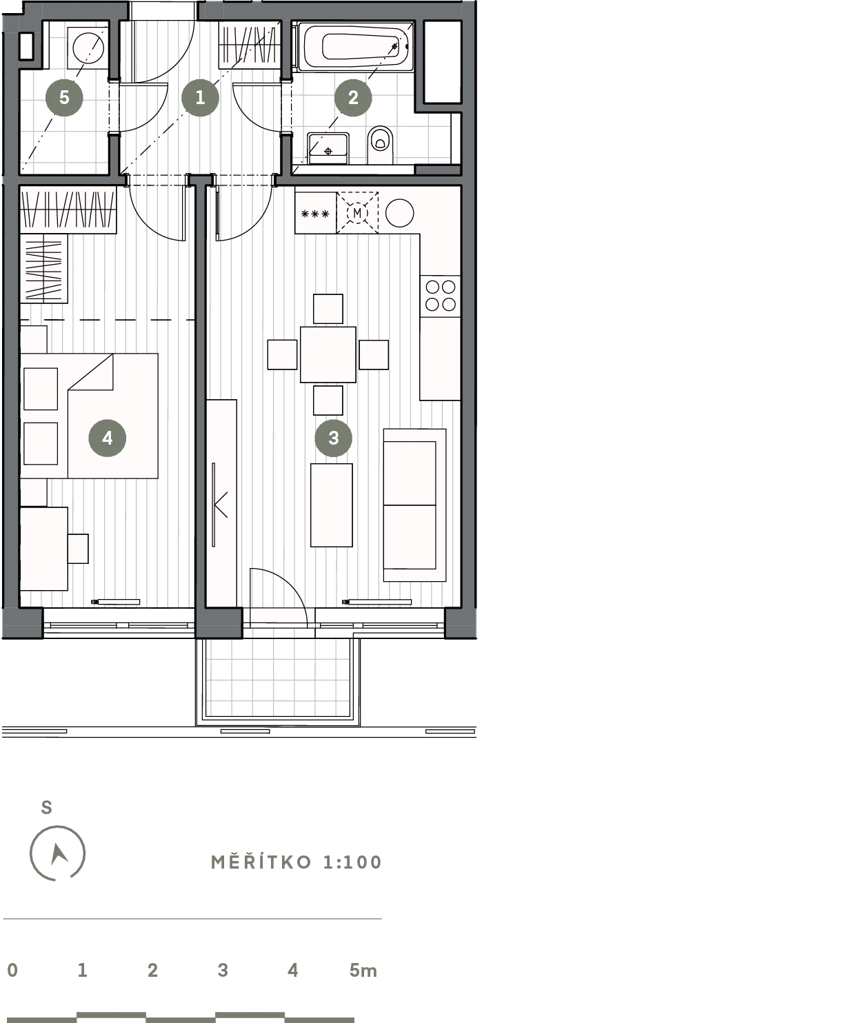
C3.02.03
                        
                        Sold
                    
                2+kk
- Price incl. VAT
- –
- Project
- Kolbenova park
- Type
- Flat
- Completion
- 3Q 2024
- Floor
- 2
- Total area
- 54,1 sq.m.
- Living area
- 50,5 sq.m.
- Balcony
- 2,3 sq.m.
- Cellar
- -
- Parking spot
- No
