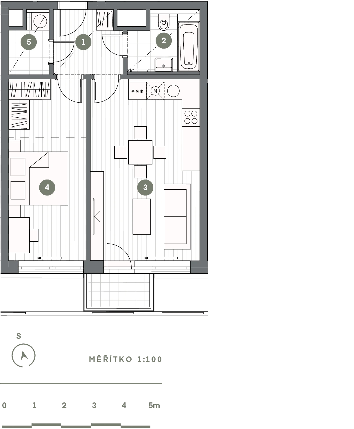
C4.01.03
                        
                        Prodáno
                    
                2+kk
- Cena včetně DPH
- –
- Projekt
- Kolbenova park
- Typ
- Bytová jednotka
- Dokončení
- 3Q 2024
- Podlaží
- 1
- Celková plocha
- 54,8 m²
- Užitná plocha
- 50,9 m²
- Balkon
- 2,3 m²
- Sklep
- -
- Parkovací stání
- Ne
