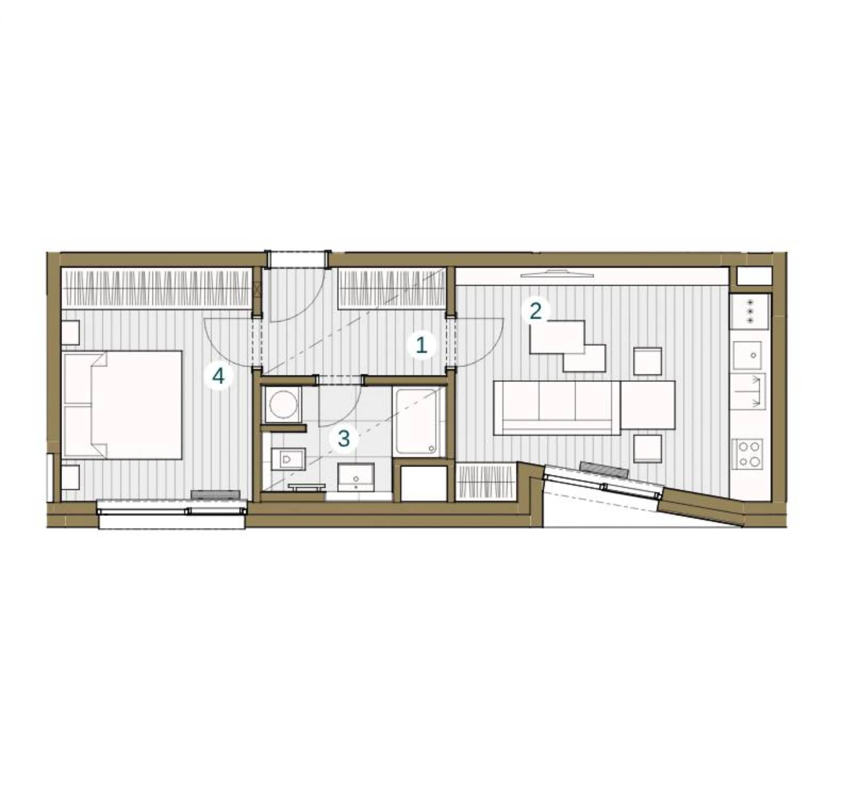
C2.03.6
Prodáno
2+kk
- Cena včetně DPH
- –
- Projekt
- Žižkovské zahrady
- Typ
- Bytová jednotka
- Dokončení
- 2Q 2027
- Podlaží
- 3
- Celková plocha
- 44,5 m²
- Užitná plocha
- 41,1 m²
- Sklep
- -
- Parkovací stání
- Ne
