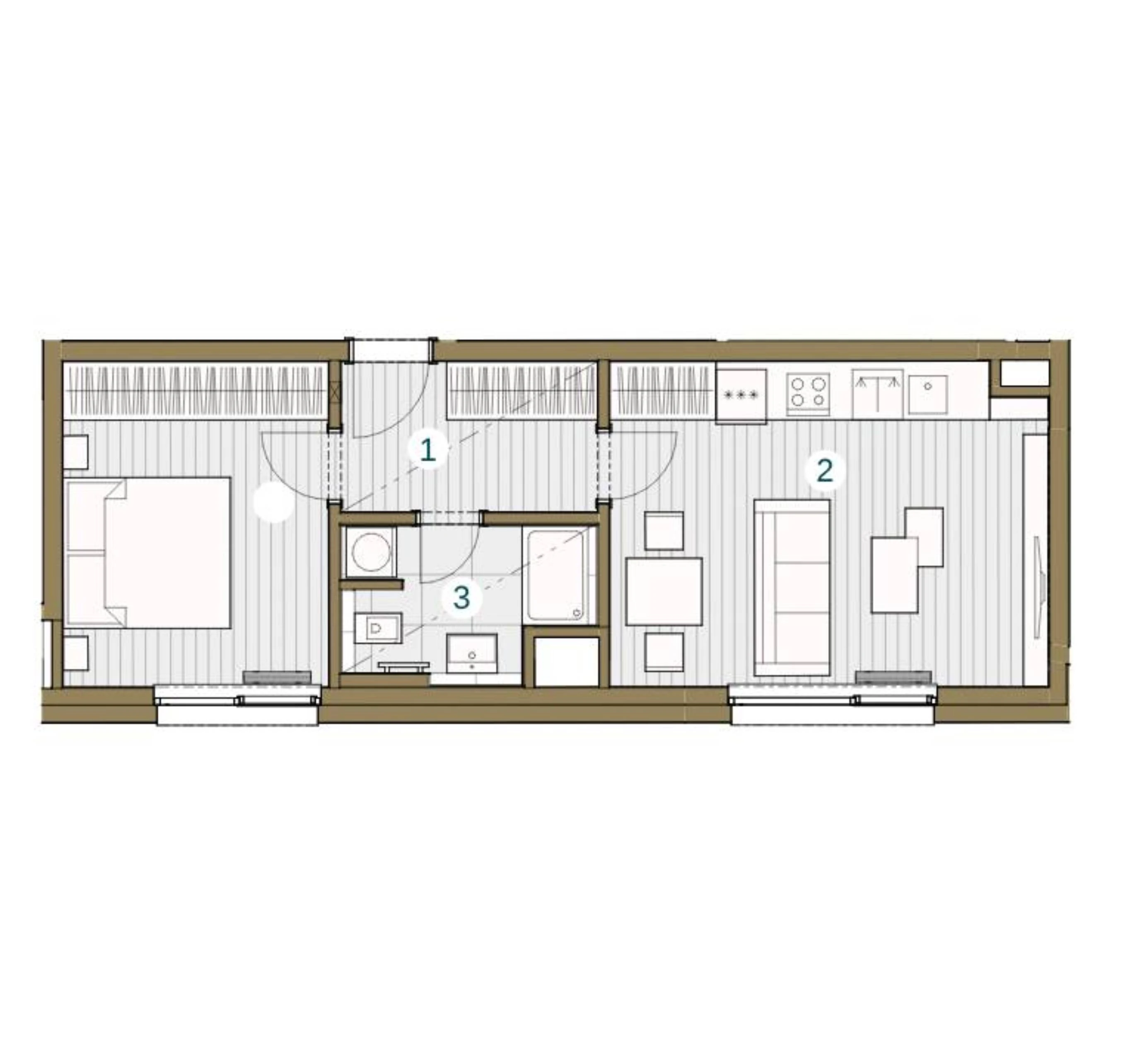
C2.02.6
Prodáno
2+kk
- Cena včetně DPH
- –
- Projekt
- Žižkovské zahrady
- Typ
- Bytová jednotka
- Dokončení
- 2Q 2027
- Podlaží
- 2
- Celková plocha
- 45,7 m²
- Užitná plocha
- 42,4 m²
- Sklep
- -
- Parkovací stání
- Ne
