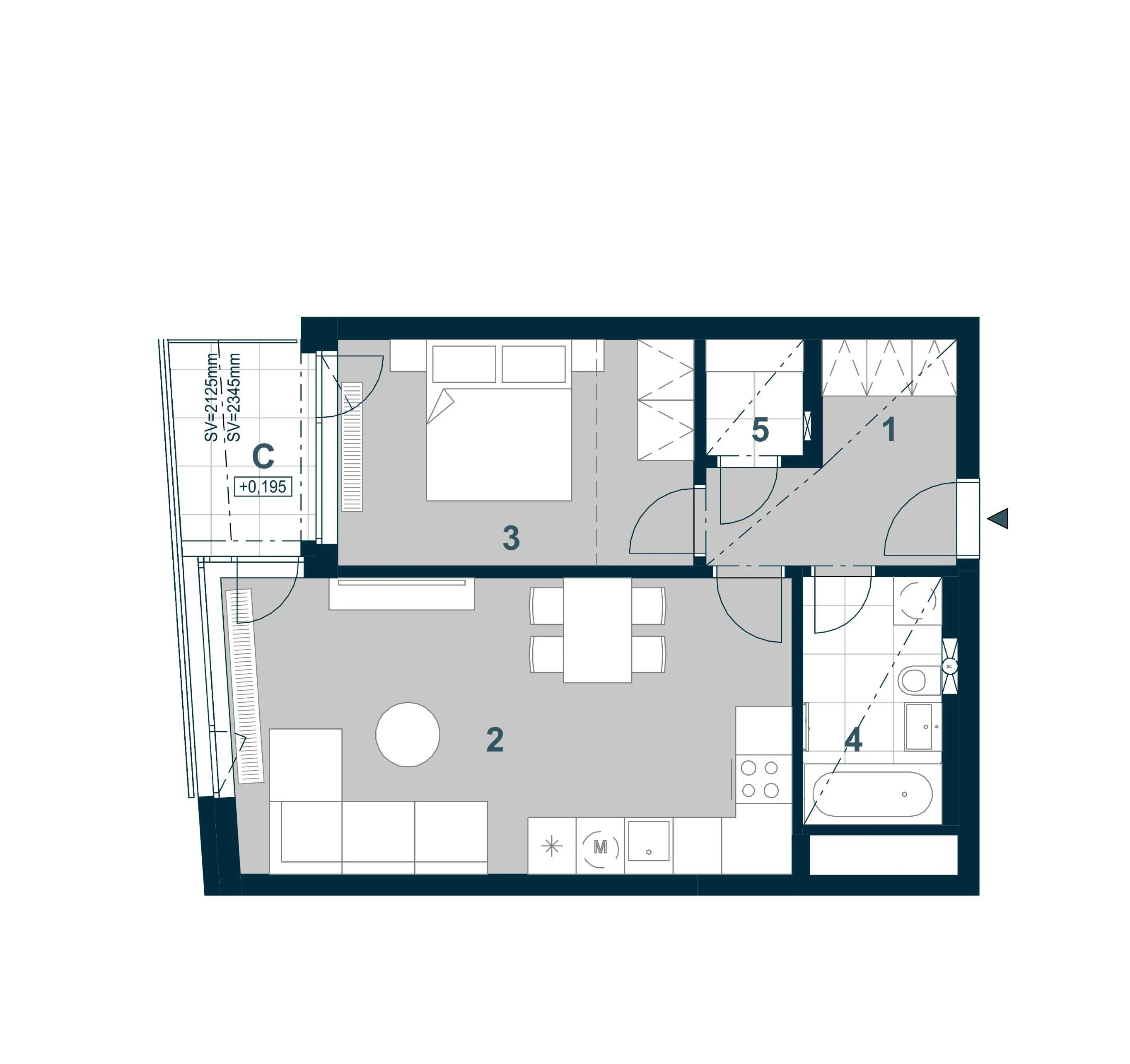
A.02.13
                        
                        Prodáno
                    
                2+kk
- Cena včetně DPH
- –
- Projekt
- Nová Zbrojovka – Morizz
- Typ
- Bytová jednotka
- Dokončení
- 4Q/2026
- Podlaží
- 2
- Celková plocha
- 56,9 m²
- Užitná plocha
- 53,3 m²
- Lodžie
- 4,4 m²
- Sklep
- -
- Parkovací stání
- Ne
